USD
M2

Caya Frere Bernadinus 12 - USD 1,250,000

For Sale: Two-Story Commercial Building in Prime Location - Paradijswijk, Oranjestad

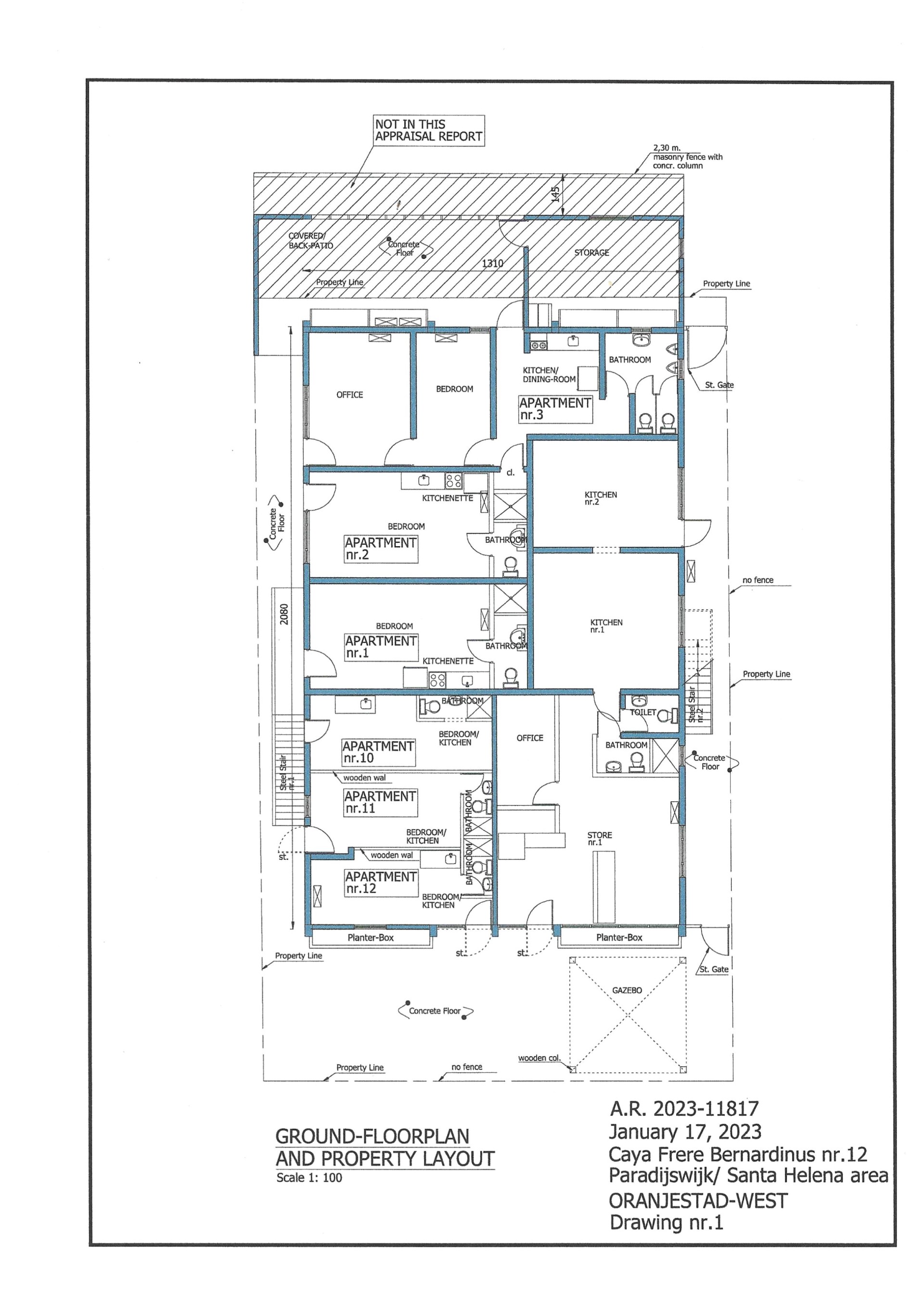
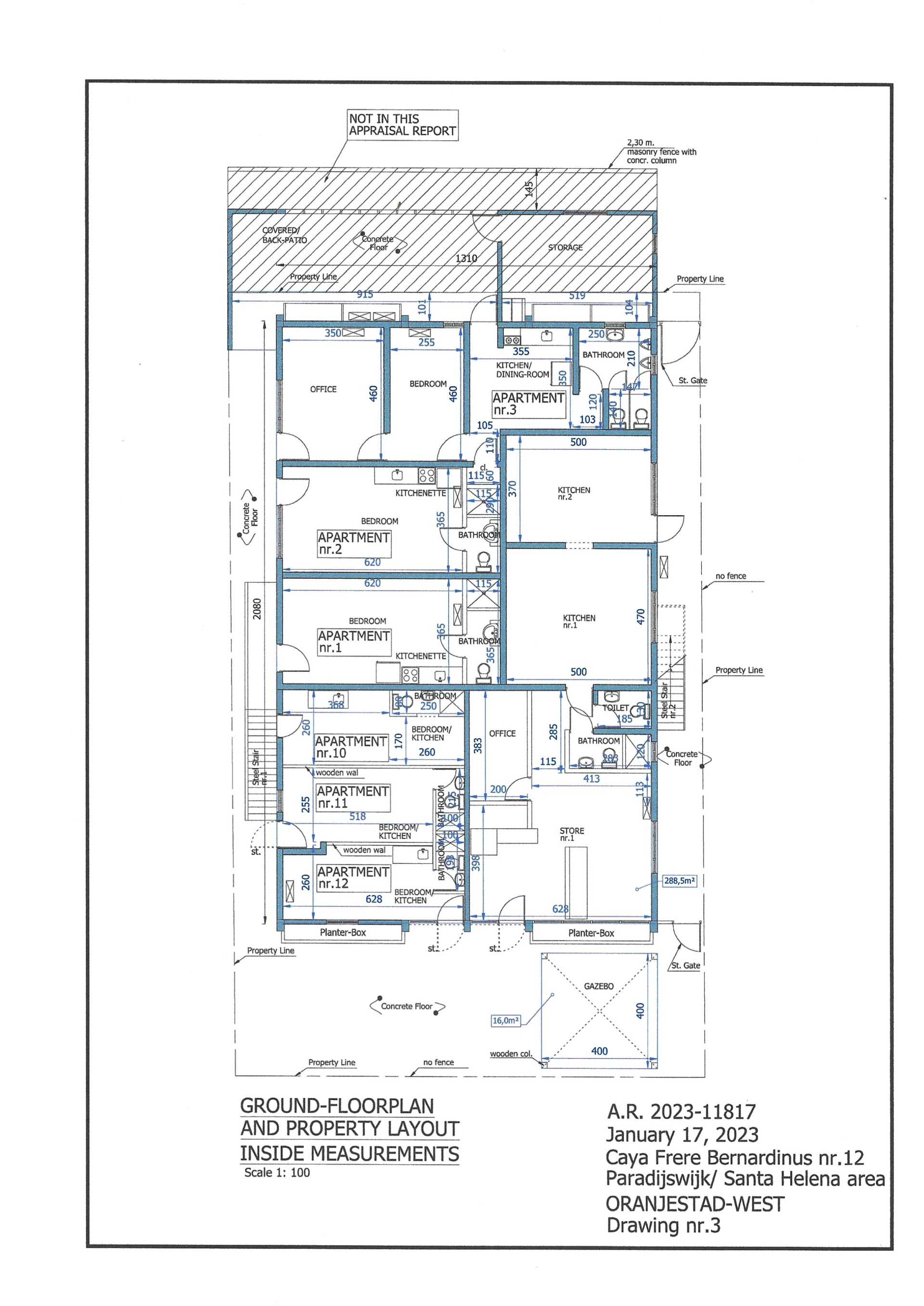
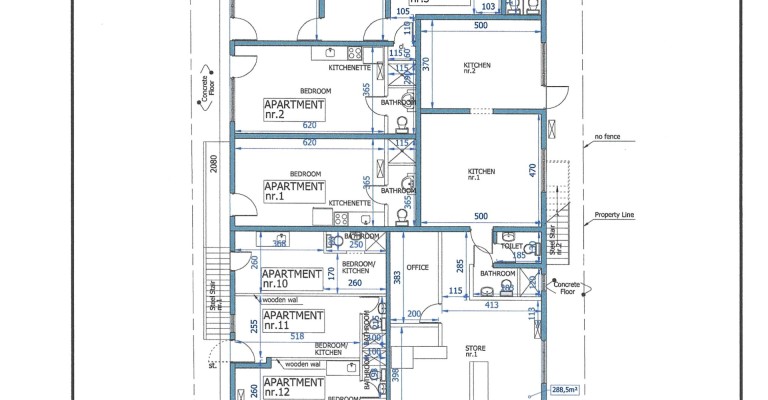
This commercial building is strategically located in the highly sought-after Paradijswijk area, just a short distance from Oranjestad and Xavier University, making it an ideal investment opportunity. Set on a generous parcel of land measuring 440 m², the building offers a total built-up area of 567 m², providing ample space for various business or residential purposes.

Key Features:

  • Ground Floor:
    • Store Unit: Perfect for retail or commercial use, with high foot traffic potential.
    • Back Area: Includes a spacious storage area, covered back-patio, office, and a bedroom, offering convenience for on-site operations or accommodations.
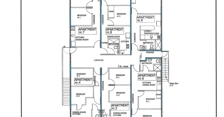
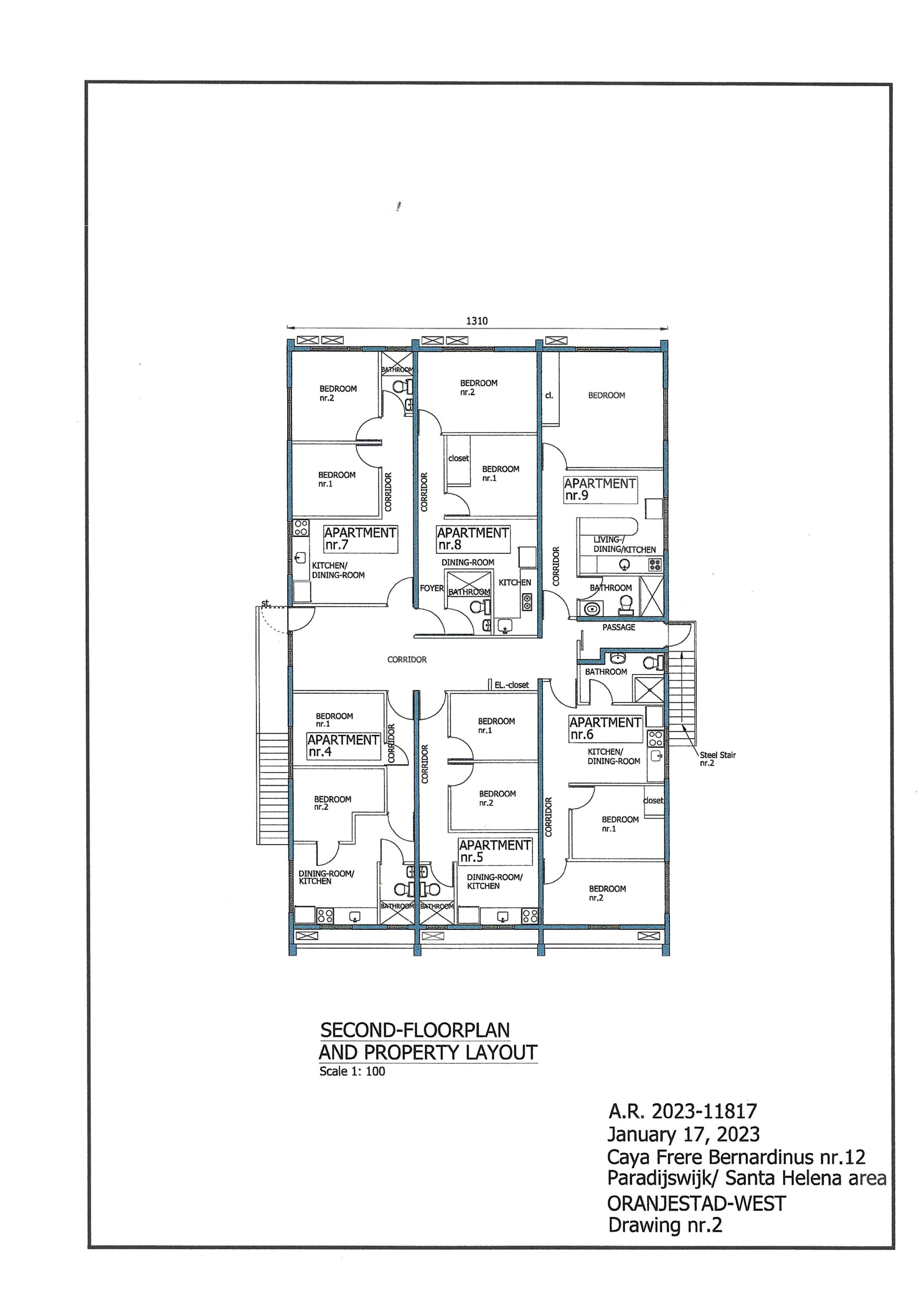
    • 6 apartments: The ground floor also features 6 fully-functional apartments, ideal for rentals.
    • Gazebo: A charming outdoor space at the front, offering a relaxing environment for tenants or customers.
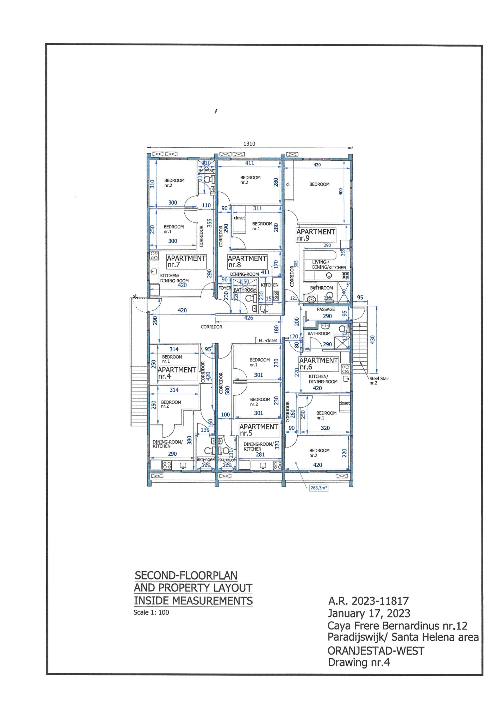
  • Second Floor:
    • 6 apartments: The second floor mirrors the ground floor with 6 additional apartments, offering great long-term leasing opportunities.

Additional Highlights:

  • Ample Parking: The property offers extensive parking around the building, ensuring convenience for tenants, customers, or staff.
  • Prime Location: Close to key amenities in Oranjestad, and within proximity to Xavier University, making it an ideal spot for student housing, commercial use, or both.
  • Investment Potential: With multiple rental units and flexible space usage, this property offers excellent potential for steady cash flow and long-term value growth.

This is a rare opportunity to acquire a well-maintained property in a high-demand area, with both commercial and residential spaces that are perfect for a variety of purposes. Don’t miss out on this promising investment!

For more details or to schedule a viewing, please contact Forever Agent Zayonara Fernandini at Berkshire Hathaway HomeServices Aruba Realty today. More interior pictures coming soon!

Mobile direct: +(297) 560 6536

Email: zayonara.fernandini@bhhsaruba.com

Web: www.bhhsaruba.com

Download brochure
Features
  • Property ID: #917
  • Lot size: 440 m2
  • Built up size: 567 m2
Inquiry Form
Show on map